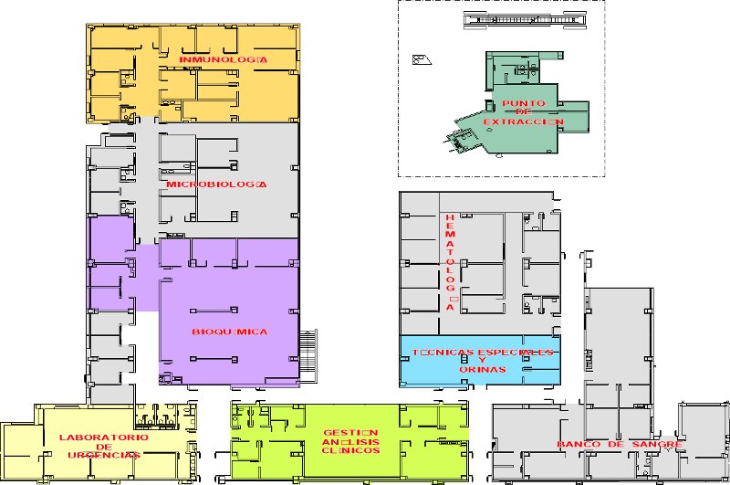
El área física total del servicio de Análisis Clínicos es de 1200 m2, de los que 1000 m2 aprox. están dedicados a áreas técnicas y 198 m2 a despachos, sala de reuniones y Aula docente.
El punto de extracción esta situado en la zona de consultas, teniendo una superficie de 110 m2.
Inmunología – 295.24 m2
Bioquímica – 338.91 m2
Laboratorio de Urgencias – 180.73 m2
Gestión Análisis Clínicos – 234.02 m2
Técnicas Especiales y Orinas – 112.68 m2
Punto de Extracción – 110.84 m2
